Omschrijving
Woning verkocht: Eysingawei 13 in Rinsumageast
Vrij wonen met ruimte, rust en mogelijkheden
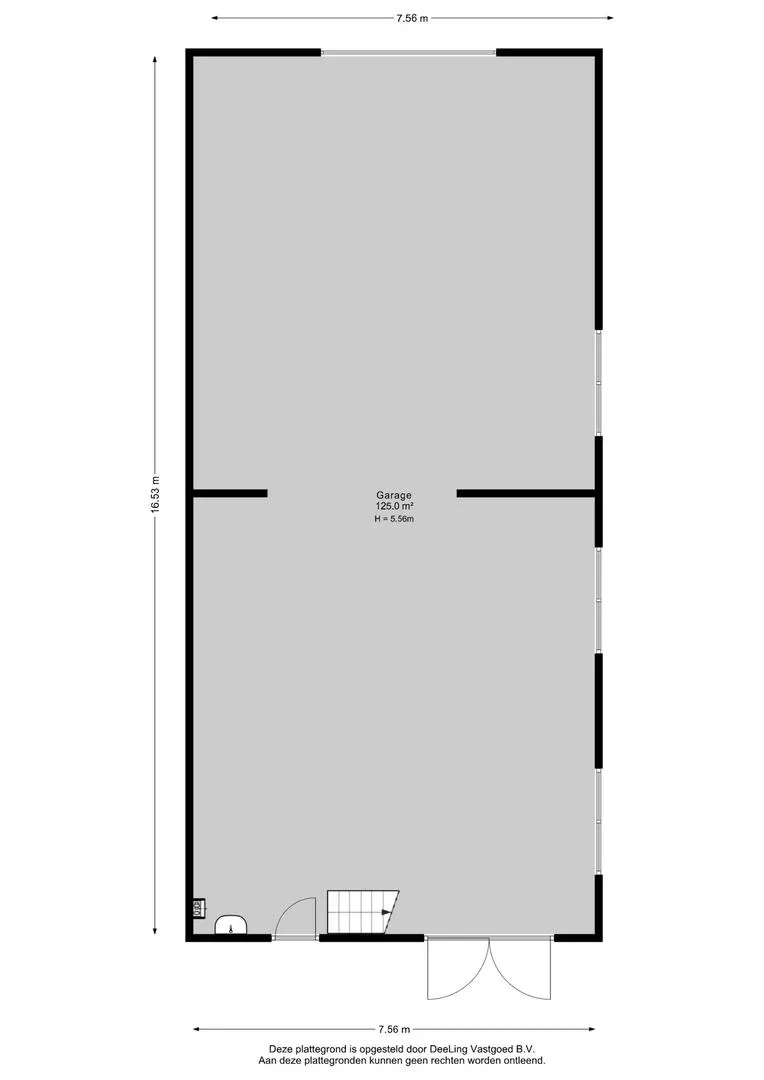
Net buiten de bebouwde kom van het dorp Rinsumageast, op een prachtige vrije locatie, staat deze nette twee-onder-één-kapwoning met een grote schuur/garage van ca. 125 m² op een royaal perceel van maar liefst circa 2.735 m². Een heerlijke plek voor wie houdt van rust, buitenruimte en het gemak van een goed onderhouden woning. De woning beschikt over een aparte woonkamer aan de straatzijde en een knusse woonkeuken aan de tuinzijde – een fijne indeling waarbij wonen en leven ieder hun eigen sfeer hebben. De woonkeuken is in 2020 vernieuwd en voorzien van moderne inbouwapparatuur en een nieuwe schuifpui, waardoor je direct toegang hebt tot het terras en de tuin. Ook is in datzelfde jaar een nieuwe cv-combiketel geplaatst. Op de verdieping zijn drie slaapkamers en een bergkamer aanwezig; ideaal voor gezinnen of wie graag een extra werk- of hobbyruimte wil. Het ruime perceel biedt volop mogelijkheden voor tuinliefhebbers, hobbyisten of ondernemers. De garage/loods/schuur van circa 125 m² beschikt over een zolderverdieping van ca. 26 m², een betonnen vloer, elektrisch bedienbare garagedeur en een wateraansluiting met afvoer. Perfect voor wie extra werk- of opslagruimte zoekt. De ligging is heerlijk vrij, met uitzicht over het omliggende landschap, en toch op korte afstand van het dorp.
– Woonkamer (straatgericht) en woonkeuken (tuingericht)
– Woonkeuken vernieuwd in 2020, met moderne inbouwapparatuur en schuifpui
– Nieuwe cv-combiketel (2020)
– Drie slaapkamers en een bergkamer op de verdieping
– Groot perceel van ca. 2.735 m²
– Vrije ligging net buiten de bebouwde kom
– Ruime garage/loods/schuur (ca. 125 m²) met zolder (ca. 26 m²)
– Voorzien van betonnen vloer, elektrisch bedienbare garagedeur, water en afvoer
Rinsumageast is een gezellig dorp in een landelijke omgeving met volop wandel- en fietsroutes. Het heeft een basisschool, sportvoorzieningen en een modern multifunctioneel centrum. Nabij liggen Damwâld (met overdekt winkelcentrum) en Elfstedenstad Dokkum. Het dorp telt ca. 1.100 inwoners en ligt op fietsafstand van het Geastmerbosk en ’t Eeltsjemar. Binnen 25 km bevinden zich Holwerd (veerboot naar Ameland), Leeuwarden en het Lauwersmeergebied. De woning staat midden in de landerijen en ligt tussen Sibrandahus en Burdaard in. Je bent hierdoor verzekerd van een rustige plek, met vele voorzieningen op nabije afstand.
Indeling van de woning (zie ook de bijgevoegde plattegronden):
Begane grond:
– entree/hal met trapopgang naar de verdieping
– aansluitend de woonkeuken van circa 12 m² met nette keukeninrichting en schuifpui naar de achtertuin
– keukenopstelling beschikt over diverse inbouwapparatuur
– woonkamer van circa 21 m² met inbouwkast
– badkamer met wastafelmeubel, douche en ligbad
– toiletruimte met fonteintje
– bijkeuken met inbouwkast, witgoedaansluiting, cv-opstelling en deur naar de zijtuin
Verdieping:
– overloop
– bergkamer/kantoorkamer/slaapkamer van circa 3 m² met dakraam en inbouwkast
– slaapkamer voorzijde van circa 8 m² met inbouwkast
– 2 slaapkamers aan achterzijde, beiden van circa 8 m², voorzien van een dakraam
Rondom de woning:
– verzorgde tuin rondom met sierbeplanting, sierbestrating, gazon en meerdere terrassen
Algemeen:
– bouwjaar circa 1920
– verwarming en warm water middels een Intergas cv-combiketel uit 2020
– meterkast voorzien van 4 groepen, een krachtstroomgroep en 2 aardlekschakelaars
– voorzien van energielabel D
Aan deze presentatie kunnen geen rechten worden ontleend.
Toelichtingsclausule BBMI. De meetinstructie is gebaseerd op de BBMI. De meetinstructie is bedoeld om een meer eenduidige manier van meten toe te passen voor het geven van een indicatie van de gebruiksoppervlakte. De meetinstructie sluit verschillen in meetuitkomsten niet volledig uit, door bijvoorbeeld interpretatieverschillen, afrondingen of beperkingen bij het uitvoeren van de meting.















































