Omschrijving
Woning verkocht: Groningerstraatweg 25 in Leeuwarden
Karakteristieke jaren ’30-woning met veel ruimte, 4 slaapkamers én garagebox nabij het stadscentrum van Leeuwarden!
Op een mooie locatie, aan de doorgaande weg richting het stadscentrum, staat deze royale jaren ’30-woning met een heerlijk ruime kamer-en-suite, vier slaapkamers en een garagebox op het achtergelegen terrein. De woning ligt op een perceel van 159 m² en biedt volop mogelijkheden. Binnen is de sfeer van vroeger nog voelbaar, maar met wat modernisering maak je hier eenvoudig jouw droomhuis van! De lichte woonkamer met erker en tuindeur naar de achtertuin zorgt voor een prettige leefruimte. De zolderverdieping biedt bovendien de kans om een vijfde slaapkamer of werkkamer te realiseren. De achtertuin op het noordwesten biedt veel rust en privacy, en via het achterom loop je zo naar je eigen garagebox.
– robuuste jaren ’30-woning met veel ruimte
– vier slaapkamers, met mogelijkheid voor een vijfde
– eigen garagebox op het achtergelegen terrein
– gelegen in een gewilde woonomgeving nabij het stadscentrum
– op loop- en fietsafstand van winkels, scholen, sportvoorzieningen en kinderopvang
Binnen vijf minuten fietsen sta je in het gezellige hart van Leeuwarden, en met de auto ben je zo op de rondweg en uitvalswegen.
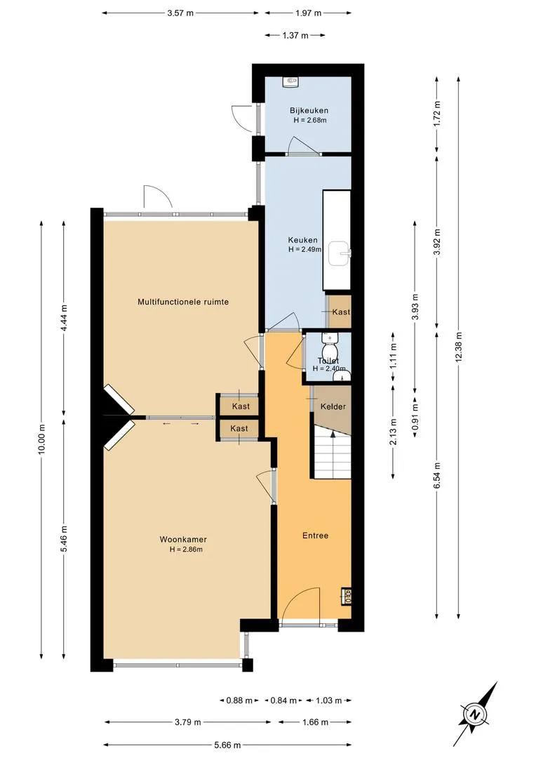
INDELING (zie ook de bijgevoegde plattegronden)
Begane grond:
– ruime hal met meterkast, trapopgang en een afgesloten trap naar de ruime kelder
– toiletruimte met fonteintje
– sfeervolle woonkamer met erker, kamer-en-suite deuren en tuindeur naar de achtertuin
– gesloten keuken met eenvoudige inrichting
– bijkeuken met cv-opstelling, witgoedaansluitingen en toegang tot de tuin
Eerste verdieping:
– overloop met vaste kast en afgesloten trapopgang naar de zolder
– slaapkamer 1 aan de voorzijde (ca. 6 m²)
– slaapkamer 2 aan de voorzijde (ca. 14 m²) met inbouwkasten
– slaapkamer 3 aan de achterzijde (ca. 13 m²) met inbouwkasten
– badkamer met tweede toilet, wastafel, douche en deur naar het dakterras
Zolderverdieping:
– ruime overloop (ca. 27 m²) met dakkapel
– mogelijkheid voor een extra slaapkamer
– slaapkamer 4 aan de voorzijde (ca. 12 m²) met dakkapel, vaste kast en wastafel
Tuin:
– voortuin op het zuidoosten met groen en sierbestrating
– achtertuin op het noordwesten met houten berging en achterom
Algemeen:
– bouwjaar circa 1936
– verwarming en warm water via cv-combiketel (Nefit, 2023)
– meterkast met 4 groepen en aardlekschakelaars
Aan deze presentatie kunnen geen rechten worden ontleend.
Toelichtingsclausule BBMI: De meetinstructie is gebaseerd op de BBMI en bedoeld om een eenduidige manier van meten toe te passen voor het geven van een indicatie van de gebruiksoppervlakte. Kleine verschillen kunnen voorkomen door interpretatie of afronding.













































