Omschrijving
Woning beschikbaar: Haadwei 28 in BroeksterwÂld
Paardenliefhebbers opgelet! Prachtig gelegen, vrijstaande woning net buiten het dorp Broeksterwâld met genoeg ruimte voor het hebben en houden van dieren en/of het uitoefenen van een andere hobby’s.
Op een landelijke locatie aan de doorgaande weg tussen Damwâld en Broeksterwâld staat deze uitgebouwde jaren ’30 woning met aangebouwde garage, recent gebouwde loods en royaal perceel. Deze woning is door de jaren heen uitgebouwd en beschikt over 3 ruime slaapkamers en een badkamer op de verdieping. De woning heeft een sfeervolle woonkamer met aansluitend de tuingerichte eetruimte en een half-open keuken met inbouwapparatuur. Aan de zijkant van de woning bevindt zich een overkapping, waar je heerlijk kunt genieten van het buitenleven. Achter de woning bevindt zich een diepe achtertuin voorzien van een geïsoleerde loods met inpandige paardenboxen en zolder en een weiland. Dit maakt het geheel zeer geschikt voor het hebben en houden van paarden of andere hobby’s. Hier heb je volop mogelijkheden en ruimte!
– vrijstaande woning op royaal perceel van 6709 m²!
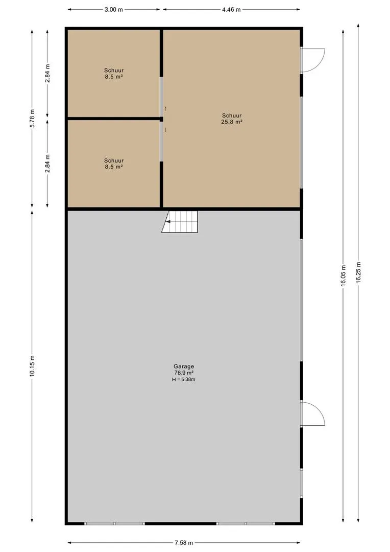
– ruime geïsoleerde loods met berging en paardenboxen van in totaal 122 m² met elektrisch bedienbare deur
– gelegen in een omgeving dicht bij natuurgebied ’t Bûtenfjild
– ideale plek voor het houden van paarden en/of andere dieren
Broeksterwâld is een authentiek en actief plattelandsdorp. Het beschikt over meerdere voorzieningen zoals een basisschool, dorpshuis, sportveld, diverse kleinere voorzieningen en relatief veel zelfstandig ondernemers. Voor de supermarkt ben je dicht bij Damwâld, waar een winkelcentrum is voor de dagelijkse boodschappen. Met een paar minuten ben je in het prachtige “Bûtenfjild”, waar je heerlijk kunt fietsen en wandelen. Voor de regionale voorzieningen is men gericht op Dokkum en Leeuwarden (resp. op 8 en 20 km afstand).
Indeling (Zie ook bijgevoegde plattegronden)
Begane grond:
– hal met trapopgang
– ruime woonkamer van ca. 28 m²
– aansluitend de eetkamer
– half-open keuken met nette keukeninrichting en diverse inbouwapparatuur
– hal met toegang tot een inbouwkast en toiletruimte met hangend toilet
– bijkeuken met witgoedaansluitingen en toegangsdeur naar de garage en overkapping/achtertuin
– aangebouwde garage van ca. 24 m² met cv-opstelling en deur naar buiten
Verdieping:
– overloop met inbouwkasten
– slaapkamer 1 aan de voorzijde van ca. 11 m² met kastruimte achter het knieschot
– slaapkamer 2 aan de achterzijde van ca. 8 m² met dakraam
– slaapkamer 3 aan de achterzijde van ca. 8 m² met dakraam
– nette badkamer voorzien van ligbad, douchecabine, dubbel wastafelmeubel en 2e toilet
Buiten:
– verzorgde voor- en zijtuin met ruime oprit en parkeergelegenheid voor meerdere voertuigen
– circa 25 meter diepe achtertuin, gelegen op het westen
– loods met elektrische deur en aangebouwd een schuur met paardenboxen
– paardenbak paddock
– weiland van circa 4300 m²
Algemeen:
– verwarming en warm water middels een Remeha combiketel (2016)
– voorzien van een gunstig energielabel C
– voorste deel van het dak is vervangen (2024) en geïsoleerd
– in 2024 is het externe schilderwerk uitgevoerd, deels voorzien van kunststof kozijnen
– de woning is voorzien van 16 zonnepanelen (2022)
Aan deze presentatie kunnen geen rechten worden ontleend.
Toelichtingsclausule BBMI. De Meetinstructie is gebaseerd op de BBMI. De Meetinstructie is bedoeld om een meer eenduidige manier van meten toe te passen voor het geven van een indicatie van de gebruiksoppervlakte. De Meetinstructie sluit verschillen in meetuitkomsten niet volledig uit, door bijvoorbeeld interpretatieverschillen, afrondingen of beperkingen bij het uitvoeren van de meting.




































































