Omschrijving
Woning beschikbaar: Jintewarren 27 in Hurdegaryp
Keurig onderhouden twee-onder-een-kapwoning met stenen garage en 12 zonnepanelen in het gezellige dorp Hurdegaryp.
Op een mooie locatie, in een kindvriendelijke woonomgeving, staat deze ruime twee-onder-een-kapwoning op een perceel van 224 m². De woning beschikt op de begane grond over een “doorzon”-woonkamer, een open keuken met bar en een aangebouwde bijkeuken aan de achterzijde. Op de verdiepingen bevinden zich in totaal 4 slaapkamers en een moderne badkamer. De 12 meter diepe achtertuin biedt je een heerlijk plekje om te genieten van het buitenleven. Je beschikt hier over een vrijstaande garage met overkapping, sierbestrating en -beplanting. Kortom, een keurig onderhouden en onderhoudsarme woning, die zeker een bezichtiging waard is!
– deels voorzien van kunststof kozijnen met HR(+) beglazing
– 4 slaapkamers verdeeld over de verdiepingen
– voorzien van muur- en dakisolatie (deels) en 12 zonnepanelen (energielabel A!)
– vrijstaande geïsoleerde garage van circa 15 m² met overkapping
Hurdegaryp is een gezellig dorp met alle benodigde voorzieningen. Zoals onder andere scholen, winkels, gezondheidscentra en een eigen treinstation op 5 minuten loopafstand. Deze heeft een rechtstreekse verbinding met Leeuwarden en Groningen. Boven Hurdegaryp ligt een schitterend natuurgebied genaamd ‘Bûtenfjild’.
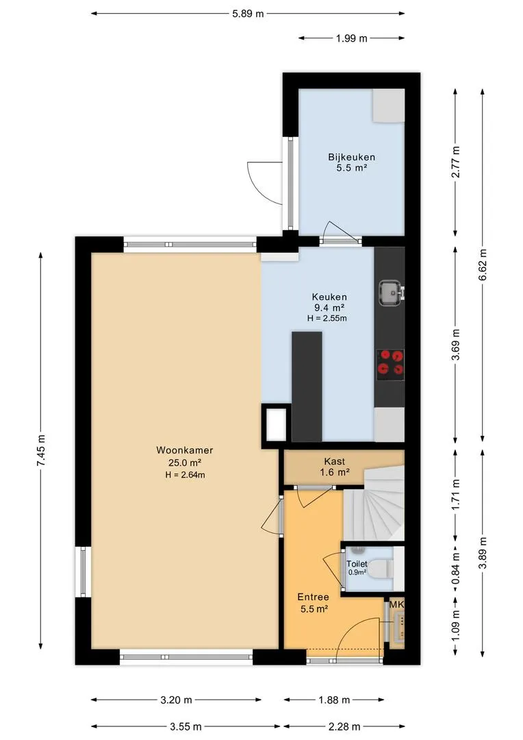
Indeling van de woning (zie ook de bijgevoegde plattegronden):
Begane grond:
– entree/hal met trapopgang, trapkast en meterkast
– toiletruimte met fonteintje
– lichte “doorzon” woonkamer van circa 25 m²
– open keukenruimte met nette keukenopstelling met barretje (2018)
– keukenopstelling voorzien van vaatwasser, inductiefornuis, afzuigkap, koelkast en een quoocker
– aangebouwde bijkeuken met witgoed-aansluitingen en toegangsdeur naar de achtertuin
Verdieping:
– overloop met trapopgang naar de zolderverdieping
– slaapkamer 1 aan de voorzijde van circa 11 m² met vaste kast
– slaapkamer 2 aan de achterzijde van circa 13 m² met twee vaste kasten
– slaapkamer 3 aan de achterzijde van circa 9 m²
– gemoderniseerde badkamer (2018) met douchehoek, wandcloset, designradiator en wastafelmeubel
Zolder:
– middels vaste trap bereikbare zolderverdieping
– overloop met bergruimte achter het knieschot
– cv/bergruimte met witgoed-aansluitingen en opstelplaats van de cv-combiketel
– ruime 4e slaapkamer van circa 12 m² met dakraam en bergruimte achter de knieschotten
Buitenom:
– keurig onderhouden voortuin met sierbeplanting en gazon
– verzorgde achtertuin van circa 12 meter diep met sierbestrating, gazon en sierbeplanting
– vrijstaande geïsoleerde stenen garage/berging met overkapping, elektra en wateraansluiting
Algemeen:
– verwarming en warm water middels een Intergas CV-combiketel (bj 2016)
– meterkast voorzien van 10 groepen met aardlekschakelaars en een krachtgroep
– bouwjaar circa 1971
– voorzien van energielabel A!
Aan deze presentatie kunnen geen rechten worden ontleend.
Toelichtingsclausule BBMI. De meetinstructie is gebaseerd op de BBMI. De meetinstructie is bedoeld om een meer eenduidige manier van meten toe te passen voor het geven van een indicatie van de gebruiksoppervlakte. De meetinstructie sluit verschillen in meetuitkomsten niet volledig uit, door bijvoorbeeld interpretatieverschillen, afrondingen of beperkingen bij het uitvoeren van de meting.
























































