Omschrijving
Woning beschikbaar: Oostenstein 36 in Kollum
Uiterst royale twee-onder-een-kapwoning op een prachtig plekje aan open vaarwater in het gezellige dorp Kollum!
Op een mooie locatie, aan het water gelegen, staat deze ruime twee-onder-een-kapwoning op een perceel van maar liefst 366 m². Deze keurig onderhouden woning beschikt over 133 m² woonoppervlakte, ideaal voor een groot gezin, want er zijn in totaal 4 slaapkamers en een badkamer op de verdieping. De sfeervolle woonkamer is L-vormig en voorzien van een balkenplafond en een schouw. Aansluitend heb je de aparte keukenruimte en de handige bijkeuken aan de achterzijde van de woning. Buiten heb je een heerlijke groene achtertuin met zonneterras, gelegen op zonnige zuidoosten. Met als kers op de taart is deze woning gelegen aan open vaarwater en kun je op je eigen steiger genieten van het uitzicht over het water en de landerijen. Verder beschikt de woning over een eigen oprit en een inpandige garage. Kortom, het betreft hier een prachtige woning met veel ruimte in en om het huis op een mooie locatie in het dorp Kollum.
– uiterst royale 2/1-kapwoning gelegen op een fraaie locatie aan open vaarwater
– woonoppervlakte van 133 m2
– voorzien van energielabel C
– in totaal 4 slaapkamers en badkamer op de verdieping
– royale achtertuin van circa 13 meter diep, gelegen op het zuidoosten
In het dorp Kollum zijn diverse soorten winkels, supermarkten, basisscholen en sportverenigingen aanwezig. Het totaal aantal inwoners is circa 6000. Vanuit het dorp is er een uitstekende busverbinding naar Dokkum en Leeuwarden. Het dorp Buitenpost bevindt zich op 5 km vanwaar de trein vertrekt naar Groningen en Leeuwarden.
INDELING (zie ook de bijgevoegde plattegronden)
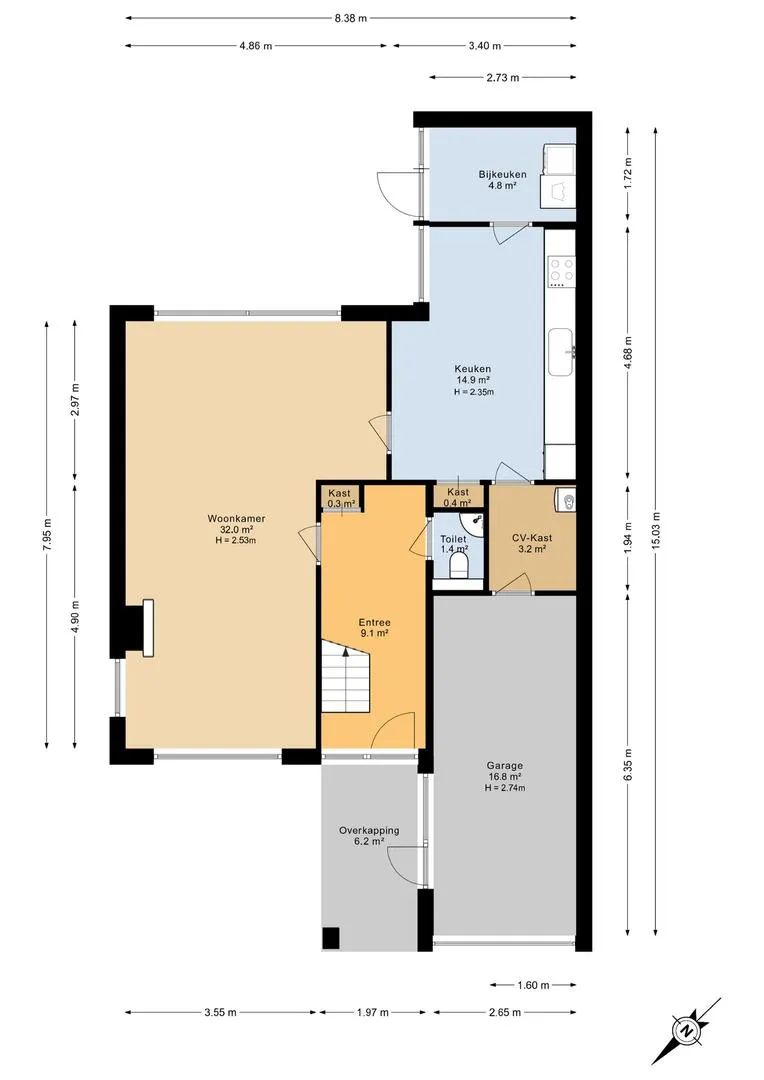
Begane grond:
– ruime entree/hal met vide en trapopgang naar de verdieping
– toiletruimte met wandcloset en fonteintje
– sfeervolle woonkamer van circa 32 m², voorzien van een balkenplafond en schouw
– keukenruimte van circa 15 m² met rechte keukenopstelling en voorzien van een inductiekookplaat, afzuigkap, koelkast, vaatwasser en een combi-magnetron, mogelijkheid voor het creëren van een open keuken
– bijkeuken voorzien van witgoedaansluiting en toegangsdeur naar de achtertuin
– tussenhal (verbinding tussen de inpandige garage en keuken) voorzien van een cv-opstelling
– inpandige garage van circa 17 m², voorzien van verwarming, elektra en wateraansluiting
Verdieping:
– overloop met vide
– slaapkamer 1 (ca. 16 m²) aan de voorzijde van de woning, voorzien van een wastafel en inbouwkasten
– 2 slaapkamers aan de achterzijde (ca. 10 en 13 m²), waarvan 1 met toegang naar het dakterras (ca. 11 m²)
– 4e slaapkamer (ca. 13 m²) boven de inpandige garage, voorzien van een dakkapel en inbouwkasten achter het knieschot
– nette badkamer (2015) voorzien van vloerverwarming, een inloopdouche, wandcloset en een wastafel met meubel
Zolderverdieping
– bereikbaar middels een vlizotrap
– mogelijkheid voor het realiseren van een extra slaapkamer
Buiten:
– eigen oprit aan de voorzijde van de woning
– verzorgde voortuin voorzien van sierbeplanting en bestrating
– royale achtertuin van circa 13 meter diep, gelegen op het zuidoosten
– achtertuin voorzien van sierbeplanting, gazon, een zonneterras en een eigen aanlegsteiger (open vaarwater!)
Algemeen:
– verwarming en warm water middels een cv-ketel van het merk Nefit (2010)
– voorzien van dubbele beglazing, vloerisolatie, muurisolatie en dakisolatie (energielabel C)
– elektra voorzien van 6 groepen met aardlekschakelaar en een krachtstroomgroep
Aan deze presentatie kunnen geen rechten worden ontleend.
Toelichtingsclausule BBMI. De meetinstructie is gebaseerd op de BBMI. De meetinstructie is bedoeld om een meer eenduidige manier van meten toe te passen voor het geven van een indicatie van de gebruiksoppervlakte. De meetinstructie sluit verschillen in meetuitkomsten niet volledig uit, door bijvoorbeeld interpretatieverschillen, afrondingen of beperkingen bij het uitvoeren van de meting.
























































